
Today (30 October 2020), one year on from the publication of the Grenfell Tower Inquiry’s phase 1 report, the Fire Brigades Union (FBU) has...
Are you a tenant in Shire Dorset facing eviction? Are you just a tenant and roundly pissed off with the vast expense and personal...
Dorset Council is asking visitors and second-home owners to help stop the spread of Coronavirus by staying away from tourist hotspot locations in Dorset.
To...
The number of people sleeping rough in Dorset has halved – thanks to work by Dorset Council and other agencies.
Latest figures show that there...
My home is within a terrace and the neighbouring property became empty quite a number of years ago; forming part of an estate in...
There are five stone self-catering holiday cottages at Hell Barn Cottages in Chideock, near Bridport. It is well positioned for fossil hunting at nearby...
Governments have built a heaven for landlords and a hell for tenants. It’s time to change the system
I have a friend who works almost every waking hour, mainly to pay the rent. Her landlord lives on a beach, 4000 miles away....
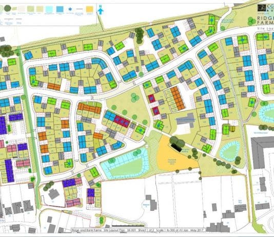
West Dorset District Council’s Planning Committee has given its approval to a reserved matters application for 292 homes at Bank and Ridge Farm in...
Rochdale MP Tony Lloyd has backed a Parliamentary private members bill to tackle unfair maintenance fees on new build developments.
The 10-minute rule bill was...
You can find more detail and search for your locally relevant findings in our database which you can access here.
Please remember to link...


















